Дома под ключ в Туапсе
Отзывы из Яндекс Карт
4.9
104 отзывов
Дополнительные услуги 88%
2 154 оценок
Комплектации 89%
1 535 оценок
Планировки 90%
2 484 оценок
Проекты 93%
2 231 оценок
С
Млада11.03.2025 г.
Построили баню из бруса и остались крайне довольны — конструкция очень теплая и прочная, зимой хорошо держит жар, а летом в ней приятно освежиться, спасибо за качественный материал и отличную работу.
Отзывы из Google Карт
4.8
63 отзывов
Дополнительные услуги 88%
2 154 оценок
Комплектации 89%
1 535 оценок
Планировки 90%
2 484 оценок
Проекты 93%
2 231 оценок
С
Женя Пастухова08.04.2025 г.
Мы заказали дом по готовому проекту, но нам внесли небольшие изменения в планировку, увеличив оконные проёмы в гостиной — и теперь там так светло и уютно, что сердце замирает от радости, когда заходишь внутрь.
Отзывы из 2гис
4.9
41 отзывов
Дополнительные услуги 88%
2 154 оценок
Комплектации 89%
1 535 оценок
Планировки 90%
2 484 оценок
Проекты 93%
2 231 оценок
С
Гриша24.07.2025 г.
Сомневался между каркасным и брусовым домом, но консультанты компании подробно расписали плюсы и минусы каждого варианта для моей ситуации. Остановился на профилированном брусе и ни капли не жалею. Дом выглядит монументально и солидно, а внутри — особая атмосфера, которую может создать только натуральное дерево. Спасибо за честный совет и прекрасный результат.


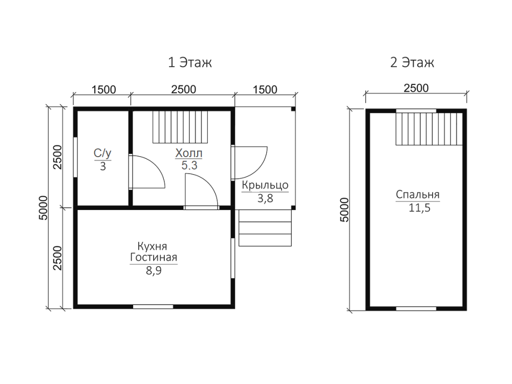
Проект №2 Дом с мансардой 5х4

каркас из строганой доски
Создайте свой план для этого проекта
и отправьте его нам на расчет в один клик.
Каркасный дом (150 мм) 5х4 Толщина утепления 150 мм 1504800 Заказать
Каркасный дом (200 мм) 5х4 Толщина утепления 200 мм 1594800 Заказать

Доставка включена в стоимость дома!

Пользуйтесь нашим планировщиком для того, чтобы получить индивидуальную планировку.

С использованием планировщика можно сделать схемы, эскизы, планы, чертежи уникального дома с мансардой, эркером, с несколькими спальнями. Вы получите проект с планировкой, полностью отвечающий вашим потребностям.

Вы имеете возможность подобрать нужный вид кровли. Крышу можно сделать четырехскатной, двускатной и вальмовой. Двухскатную крышу считают наиболее популярной у малометражных домов.

Востребованные размеры коттеджей и домов на сегодняшний день: мини - до 50 м2 (в основном, одноэтажные дома); компактные - от 70м2 до 100 квадратов (обычно 2х этажные); большие - начиная от 150м2 и больше.

Строим дуплексы - большие современные каркасные дома с двумя входами на несколько семей. Дома предполагаются для двух хозяев, они разделяются на две части, для обоих половин - свой вход.


Наши работы

Перейти в галерею


Комплектация

Площадь застройки: 20 м2
Длина: 5 м
Ширина: 4 м
Общая площадь: 29.79 м2
Исполнение Под ключ (с отделкой)
Фундамент Свайно-винтовой или ж/б сваи (рассчитываются отдельно).
Гидроизоляция фундамента Рубероид в два слоя.
Основание (обвязка) Из обрезного бруса 150х150 мм. 150х200 мм. согласно выбранной толщине утепления. Торцевая доска строганая 45х145/45х195+/-5 мм. согласно выбранной толщине утепления. Обработка антисептиком.
Цокольное перекрытие Строганая доска камерной сушки 45х145/45х195+/-5 мм. с шагом 590 мм. Обработка антисептиком.
Пол черновой Обрезная доска камерной сушки 20х100 мм.
Влаго-ветрозащита чернового пола Мембрана Ондутис А100.
Внешние стены Стойки каркаса из строганой доски камерной сушки 45х145/45х195+/-5 мм. с шагом 590 мм. Верхняя двойная и нижняя обвязки из строганой доски камерной сушки 45х145/45х195+/-5 мм. Разгрузочный ригель из строганой доски 45х145+/-5 мм. Укосины из строганой доски 20х95 мм.
Перегородки Стойки каркаса из строганой доски камерной сушки 45х95+/-5 мм. с шагом 590 мм. Верхняя двойная и нижняя обвязки из строганой доски 45х95+/-5 мм. Разгрузочный ригель из строганой доски камерной сушки 45х145+/-5 мм. Укосины из строганой доски камерной сушки 20х95 мм.
Сборка каркаса На гвозди.
Высота от пола до потолка Дом одноэтажный: 2,5 м. Дом с мансардой: 1-ый этаж- 2,5 м.
2-ой этаж (мансарда)- 2,3 м.
Дом в полтора и два этажа:
1-ый этаж 2,5 м.
2-ой этаж 2,4 м. в полутораэтажном доме
2,5 м. в двухэтажном доме.
Внешняя отделка стен Имитация бруса камерной сушки, сорт АВ, толщиной 17 мм. Монтаж через строганый брусок камерной сушки 45х45+/-5 мм. (вентилируемый фасад). Влаго-ветрозащитная мембрана- Ондутис А100.
Внутренняя отделка стен, перегородок Евровагонка камерной сушки, сорт АВ, толщиной 12,5 мм. по строганой рейке 20х40+/-5 мм. либо ГКЛ 12,5 мм.
Отделка потолка Евровагонка камерной сушки, сорт АВ толщиной, 12,5 мм. по строганой рейке 20х40+/-5 мм. либо ГКЛ 12,5 мм.
Пол чистовой Шпунтованная доска камерной сушки толщиной 35-36 мм. сорт АВ. по строганой рейке 20х40+/-5 мм. либо шпунтованная ДСП 16 мм. по разряженной обрешётке из строганой доски камерной сушки 20х95+/-5 мм.
Утепление (пол, потолок) Минеральная вата Knauf 150/200 мм. согласно выбранной толщине утепления.
Утепление стен Плитный утеплитель Rockwool, толщиной 150/200 мм. согласно выбранной толщине утепления.
Звукоизоляция перегородок Плитный утеплитель Rockwool, толщиной 100 мм.
Пароизоляция (стены, перегородки, пол, потолок) Плёнка Ондутис R70. Дополнительная герметизация нахлёстов/примыканий пароизоляционной плёнки клейкой лентой Delta.
Окна Двухкамерные стеклопакеты ПВХ белого цвета, профиль 60 мм. В комплекте: отливы, подоконники, москитные сетки.
Двери Входная- металлическая, утеплённая (Россия). Межкомнатные- филёнчатые.
Наличники на окна и двери Наличник деревянный, строганый, камерной сушки 70-90 мм. с двух сторон.
Лестница (при наличии второго этажа) Деревянная, одно или двухмаршевая. Перила- заводские резные, балясины- заводские точеные, устанавливаются стартовые точёные столбы. Ступени 40х200 мм. Тетива лестницы- 90х140 мм.
Крыша Двускатная, ломаная или вальмовая в соответствии с проектом.
Стропильная система Выполнена из строганой доски камерной сушки 45х145/45х195+/-5 мм. Шаг установки стропил 590 мм.
Обрешётка Выполняется из строганой доски камерной сушки толщиной 20х95+/-5 мм. Шаг крепления обрешетки 350 мм. Контробрешётка выполняется из строганого бруска камерной сушки 45х45+/-5 мм. Крепится по стропилам (вентиляционный зазор).
Подкровельная мембрана Ондутис А100
Кровельное покрытие (на выбор) Металлочерепица 0,45 мм. Цвет на выбор.
Фронтоны (при наличии) Каркас из строганой доски камерной сушки 45х145/45х195+/-5 мм. Обшиваются имитацией бруса камерной сушки, сорт АВ, толщиной 17 мм. Монтаж через строганый брусок камерной сушки 45х45+/-5 мм. (вентилируемый фасад). Влаго-ветрозащитная мембрана- Ондутис А100. Монтаж вентиляционных решёток.
Свесы крыши Ширина 400 мм. Подшиваются вагонкой камерной сушки, сорт АВ.
Терраса/балкон (при наличии) Устанавливаются опорные столбы из строганного бруса камерной сушки 140х140 мм.
Отделка потолка террасы/балкона Евровагонка камерной сушки толщиной 12,5 мм. сорт АВ.
Пол террасы/балкона Шпунтованная доска камерной сушки толщиной 35-36 мм. сорт АВ.
Ограждение террасы/балкона Перила- строганая доска. Балясины- точеные, фигурные. Либо ограждение в скандинавском стиле. Устанавливаются ступени у входа.
Допуск на геометрические параметры Составляет +/- 50 мм по длине с каждой стороны.
Допускается стыковка имитации бруса, вагонки и половой доски По всему периметру стен дома (если ширина и длина дома более 6,0 метров). Вагонки и доски пола в каждой отдельной комнате.
Допуски по имитации бруса, вагонке, доске +/- 5 мм.
В стоимость включена Доставка комплекта материала в радиусе 500 км. от г. Пестова Новгородской области и сборка дома на вашем участке.
Гарантия 5 лет.
Бытовка строительная 2,0х3,0 м. каркасно-щитовая. Стоимость 23000 руб. Остаётся на участке Заказчика.
Туалет 1,0х1,0 м. каркасно-щитовой. Стоимость 12000 руб. Остаётся на участке Заказчика.
Генератор Стоимость аренды на весь срок строительства 15000 руб. ГСМ за счёт Заказчика.

Строительство домов может осуществляться в 2-х видах: под ключ и под усадку, когда сруб будет отстаиваться некоторое время.

Зимой мастера рекомендуют строить дом в мороз, чтобы каркас не успел промокнуть, летом - не под дождем.

Наиболее подходящими для сада или дачи стали бюджетные домики на винтовых сваях, у нас вы увидите одноэтажные и полуторатажные дома.

Когда дом строится для ПМЖ (постоянного проживания), можем предложить теплые дома на плитном и ленточном фундаменте.

Имеется два варианта толщины утепления: 150 мм и 200 мм. Каркасные дома с толщиной утеплителя двести миллиметров получаются теплее, но стоят дороже.

Дополнительные услуги


Дом с каркасной структурой , по чертежу 2 полутораэтажный с утепленной двускатной крышей, выделяется экологической чистотой, благодаря использованию стружчатых плит, минеральной и базальтовой ваты, а это гарантирует высокую защиту от холода, комфортный микроклимат в жилище. Габариты помещения составляют 5х4 м., суммарная жилплощадь - 29.79 кв.м.. Наша компания в минимальные сроки создаст для вас каркасник по персональному или типовому плану в Туапсе в оптимальное для вас время года и на любом типе грунта.

Популярные проекты


Дома из бруса 6х5 Каркасные дома 4х5 Каркасные дома 8х9
хит продаж
Тип: с балконом, с маленькой террасой
Общая площадь: 2
1968520
от 1874800
хит продаж
Тип:
Общая площадь: 2
1611520
от 1534800
хит продаж
Тип: с балконом, с маленькой террасой
Общая площадь: 2
2606080
от 2482000
Дома из бруса

Заказать или задать вопрос



Заказать или задать вопрос

Заказать звонок